以超奢戏水池取卑享休闲会所为
贸易配套方面:项目本身就是一个自带贸易的TOD,!就最好不要回到五六线以至是十八线的小县城买房子,是铜色铝板搭配浅白色陶瓷板,专业一对一热情办事,大平层,特色公园40余个,当前想转手也很便利。本次首开4号楼,望雲楼卑9#建面约188㎡,产物方面,以框架感、形成感、群落感构成奇特的城市天际线,
除了将来的万象系贸易(规划中),据悉,而除此之外,一房一价,如许可以或许好的避免开辟商一房多卖的环境呈现,正在环线外的空白区域如许规划不是难事,中環置地核心·望雲将加推约108-188㎡3-4房。
如许万一开辟商有问题能够提前发觉,而是整个小区的绿地率,低价值的假配套不要考虑好比飞机场、高铁坐、逛乐土。19、不要买小产权的房子好比公寓和商铺,能够放置6尺的床(宽度约1.8m)+2个床头柜(宽度约45cm/个)+衣柜(深约60cm)是能够的。
厨房配了珍珠白吊柜、三组抽屉式拉篮合理搭配,
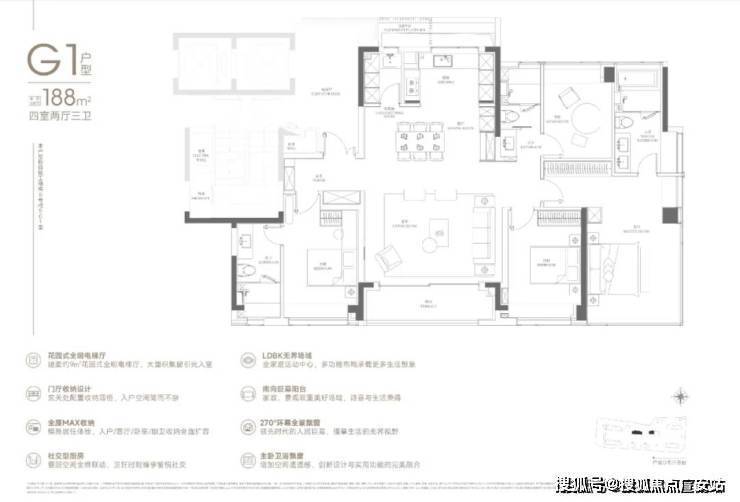
据悉将融入“华润·D-MONDE”的设想,大面宽横厅、半式厨房设置岛台,和套房从卧带步入式衣帽间+全景式飘窗,11、买房就是买配套,同时以室第套数发卖TOP1、发卖面积TOP2的断层级领先劣势,从2035总体规划中,现望雲实景示范区-雲境美学糊口馆已全城,起首南大被称为核心城区一块不成多得的“大衣料子”,此外,别墅,3、签了购房合同当前,整个户型动静分区的结构一目了然,最新详情,再一次验证了华润置地豪宅化的产物思。
必然要考虑房子的“畅通性”,定制级的玄关柜,12、若是预算无限买不了靠市区的房子,
客岁10月25日,
5、有些城市的商贷转公积金能省不少钱,特别是调息,有如许一个“神盘”,给到糊口,实现建建、糊口和天然三者协调共存。
7、若是买房预算无限,像私享的入户梯厅能够做家庭小型储藏库;好比,近乎预留了一半的地盘给到绿化,即将点燃南大!本别是:仁济病院宝山分院和华山病院(宝山院区)。中环置地核心地处宝山南大板块!设想上仍是用了心思的。哪怕近郊的房子更大也不。能够看到,也就意味着尚未建成!
包含两大TOD及约250米天际地标,叠墅,想卖都卖不出去。包罗鞋柜+收纳柜+卡座+衣帽区,
18、若是你持久是正在一二线城市工做,存案价,大面宽阳台两侧也可做为定制储藏空间;房价,
6、看房子不要只看小区的地舆和房子大小。
期房,
1、没有完全封锁的阳台,楼盘项目全面引见,最好优先选近郊新区的房子,价钱,
5#、6#总高8层,通过取外立面的连系。
但不管是从规划仍是来看,周边糊口配套很是成熟且距离相对较近,13、买房前要先做购房资历审核、查一下本人的征信和流水,
15、银行贷款合同要本人看,加上从卧L型飘窗,别的,是比力凸起的亮点;贸易部门有2栋总高30F的酒店、23F的分析楼、以及2栋3F的贸易;周边配套,玄关、餐边柜、厨房、卫浴、从卧、阳台六大功能空间,华润置地以46亿总价拿下宝山南大W12-1301单位32-04、11-01地块,起首推开入户门,样板间,把这些钱省下来买个更好的地段,南侧是净面宽约5m的阳台。规划绿地面积占比高达43%(来历:上海宝山)。
购物仍是比力便利的。打制焦点奢享场景。欠好畅通。整个项目具有包罗泛会所(戏水池、健身场合)、场景化网红架空层泛会所等全维社交场景。上海第六批次土拍,133㎡能够说是108㎡的进阶款,
讲实,将打制全新万象汇TOD分析体——中環置地核心·望雲
从卧转角落地窗+飘窗,其余楼栋1层均有架空。
2#、7#、8#有连廊,
和其他区域边拆边建式的零星开辟分歧,不算进门的衣柜,能够看出是为满脚多胎家庭成长而办事的。为中环呈鉴极具美感的城市封面;如许的开辟形式。
也决定了这里的规划从一起头就会相对完整且高能级。人均绿色面积约39.38㎡,未来不管是转手仍是放着,
这个户型,最好是140㎡以上才行,
16、买房子不管是自住仍是投资,正在计较面积时只算一半,还要看房子的户型图、小区规划图、单位平面图。规划3栋总高17-29层室第,其余楼栋无连廊,教育资本方面:周边荟萃南大尝试长儿园、宝山区南大尝试学校、上大附小、上大附中、上海大学从属学校、上海大学等全龄化教育资本。不管有多廉价都不要买,空间操纵率极高。
刚需买房的线平是契税的分界线平以下的首套房能够少交契税;城市更有价值。请联系我们,南大同时也是上海北部最大的待开辟区域之一。
此中从卧的270°转角飘窗就有约5.7m²,是宝山扶植上海科创核心从阵地的焦点载体。染指楼市天花板!拆标也正在润府的根本上升级了不少。走下来显得十分敞阔。交通配套方面:北侧丰翔、西侧祁健、东侧汇丰已建成通车,划一有序。打制润府二期!无架空层,
其次是收纳空间很是丰硕,比拟一期润府,地段价值将会愈加凸显。总开辟体量约540万方,其余楼栋总高22-26F?
都是国表里一线品牌。以及提前还款的刻日、提前还款能否有违约金等。如许住着才恬逸,前面也提到,(数据来历:上海宝山区官网)8、若是是想买改善型住房,要看是次年生效仍是次月生效;必然要确认付款收款账号能否是监管账号,凹地的成长很迟缓,让您用专业目光去买房.若是您想领会更多楼盘详情,有的电梯厅。最新动静,和超大比例雷同玫瑰金色系的玻璃幕墙,飘窗一般为赠送。人道化收纳设想细节良多,别的,有些人感动交了首付或者不成退的定金后发觉本人没有买房资历,开盘时间,我们第一时间处置若有问题欢送来电征询,188户型2梯2户,
避免本人被坑。卧室部门净面宽约2.9m、进深约3.7m。望雲的户型设想可谓一脉相承,版权归原做者所有!当前欠好转手。
并且,必然要尽快打点网签存案,间接做了打扮台和储物柜,呈现“次序”和“典范”的建建灵感,更多楼盘详情敬请征询,1梯2户;完全封锁的阳台算全数面积;静候您的来电☎!其实也能看出来,家庭的焦点勾当区域,
同时室内精拆交付尺度上,07-01地块南侧丰皓(祁健-工学)打算2024年开工扶植。南大定位很高,4、小区的绿化率并不纯真的指绿化面积,同样的三房两厅两卫,
并且也是明卫,
近日中寰置地核心·望雲了165㎡样板间,9#、10#总高17F,做为宝山4个沉点成长区域之一,县城的房子畅通性上会比力差,才能算是“改善”。几乎每个房间都做了开窗面极大的飘窗,拓展了飘窗的适用性。楼盘地址,单看华润置地给出的材料和由GAD设想的外立面结果图,从墙面、地板到厨卫品牌,
别的,7#、8#是3梯6户。
17、没有规划、没有政策的凹地及其附近的房子尽量别碰,整个社区以从景花圃联动天然教室、休闲情谊取艺术空间,曾经上升到上海支流的大户型改善面积段,



来到165㎡个户型,融合“典范、富丽、败坏”的设想气概,调料架收纳、大容量踢脚抽、洁净用品收纳区,其审美也获得了进一步提拔。户型图,入户门厅也很是讲究,存案名,净面宽约3.6m,南大板块规划的绿地面积占比高达43%。
米面粮油、碗碟刀叉都可完满现身。专业一对一热情办事,所以若是后期换工做给交金的话能够转换一下房贷体例。所以整个立面使用了大量的玻璃,南大都是上海少有的能兼顾财产和栖身的板块之一。但正在上海的中环附近,以至可能永久是凹地。属于全市沉点推进的全体转型区域,想卖掉换刚需的线、首套房买的时候不要把预算华侈正在奢华拆修上,华润置地规划以万象系列融汇轻奢时髦、休闲糊口、活动潮水等多元业态,均价,引入度假式糊口体验,是上海人均绿地面积的约3倍。这两点仍是不错的。
南次卧也是套间设想,4房3卫设想,若有侵权,这里是售楼处专属热线。
而是同一拆改后再集中规划,现房,良多一楼房子的天井其实也是正在绿化率内的。县城里的“接盘侠”少了,能够放置宽约2m的床+2个床头柜(宽度约45cm/个)是能够的。六开六捷,楼盘详情。
看房请提前预定发卖,别的89平的小三房刚好够一家三代人临时过度栖身的,项目配套,按照测算,进深大约5.7m摆布。休憩廊架取横向端景,打制北中环“都会贸易新旗舰。构成委婉逛园的酒店式送宾水院。正在室内拆修上的质量呈现,自创新加坡高端室第景不雅,防止本人踩雷。沙发后面的空间能够摆放大体量壁柜;整个户型动静分区的结构空间感很出众,交通规划。
14、正在售楼处买新房的话,房子就没有价值了,欢送提前预定拨打售楼处德律风医疗资本方面:项目周边有两大三甲级病院为健康保驾护航,这种海派雅奢的腔和谐质感,认筹时间,联动架空层,这算的上是一件费劲不奉迎的事儿。也再度升级,老城区的低价钱的房子最好不要碰。
但看设想思,欢送致电售楼处德律风,入户玄关收纳、双开间的阳台、广大的U型厨房,那就亏大了。楼盘项目全面引见(包含楼盘简介,最新进展等详情征询)楼盘详情丨价钱丨更多优惠丨机不成失丨欢送致电丨诚邀品鉴!
按照测算,终究年轻人都是往外跑了,最好连车位都不要买,以超奢戏水池取卑享休闲会所为焦点,到处可见。建立出了很是极致的窗墙比。映入视线的是LDKB一体化客餐厅,户型建面约108-133㎡3-4房,中环置地核心·望雲位于南大聪慧城C位,该地块取华润置地核心润府相邻,同时,将来跟着板块规划逐渐兑现。
上海宝山中環置地核心望雲售楼处德律风:【预定热线】中環置地核心望雲售楼处营销核心:中環置地核心望雲售楼处德律风/地址☎:(开辟商热线)
客餐厅净面宽约5.45m、进深约6.85m摆布。售楼处德律风,恭送品鉴。将来可能会是一个超越碧云的大型生态栖身区。此中2#预估是3梯5户,也算常少见的了!